Regionální centrála ČSOB Hradec Králové

Místo: Hradec Králové
Klient: ČSOB, Radlice Rozvojová a.s.

1. místo v architektonické soutěži
Kancelář roku 2021
Certifikace LEED Platinum

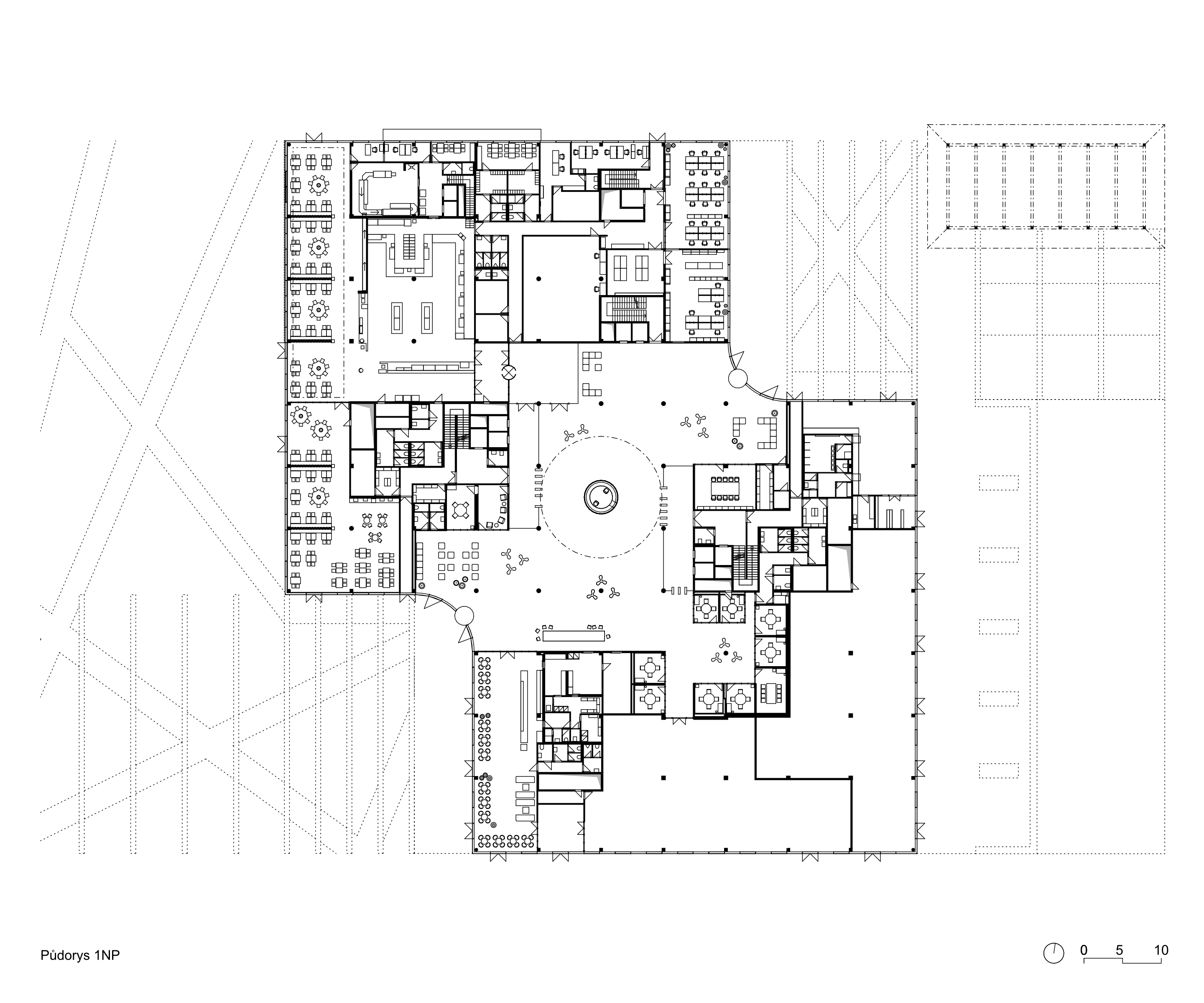
Nová regionální centrála ČSOB je administrativní budovou s poloveřejným parterem. Budova má výrazný půdorysný tvar se dvěma venkovními a jedním vnitřním atriem. Vybráním objemu budovy v protilehlých rozích vznikají dvě piazzetty, které výrazně urbanisticky reagují na své okolí. Hlavní vstupy do objektu jsou díky tomuto konceptu přiblíženy k samému středu budovy. Velká míra prosklení zajišťuje prolnutí exteriéru s interiérem budovy, deklaruje tak její otevřenost a vstřícnost. Římsy mezi jednotlivými patry zvýrazňují horizontální linie budovy a opticky ji snižují. Architektura je praktická, účelná, objem budovy pevný a soudržný. Zapojení budovy do stávajícího prostředí je podpořeno vazbou parteru na okolí. Jihozápadní piazzettu obydluje kavárna, jídelna na západě vizuálně komunikuje s plochou louky u labského nábřeží, vstup do bankovní pobočky je orientován do Collinovy ulice a na severovýchodní piazzettu přicházejí návštěvníci a zaměstnanci od Gočárova okruhu ze zastávky MHD. Střecha objektu je navržena jako pobytová zahrada s výhledy na centrum města či přes jeho periferii do krajiny, na hřebeny Orlických hor i Krkonoš se Sněžkou.

Exterier

1 / 15

Parter budovy je veřejně průchozí. Střed vstupní haly je označen kruhovou recepcí, nad kterou se otvírá centrální vnitřní atrium přes všechna nadzemní podlaží. Kruhové atrium přivádí denní světlo do středu půdorysu a je přirozeným orientačním bodem ve všech nadzemních patrech. Ve vazbě na centrální společný prostor prostupují domem dvě vertikální jádra se schodišti, výtahy, sociálním a technickým zázemím. Patra kanceláří se rozvíjí od středního kruhového atria, kam jsou orientovány výstupy z vertikálních komunikací.

Interier

1 / 22

Soutěž: 2015
Projekt: 2016-2019
Realizace: 2019-2021
Zastavěná plocha: 7 980 m2
Užitková plocha: 36 900 m2
Obestavěný prostor: 170 000 m3

Generální projektant: PROJEKTIL ARCHITEKTI
Autor: Roman Brychta, Adam Halíř
Spolupracující architekt: Marek Sankot, Klára Táboříková, Jan Karásek, Ondřej Hart, Thu Huong Phamová, Renata Horová

Hlavní inženýr projektu, stavební řešení, BIM: Karlínblok
Statika: Němec Polák
Zahradní architekt:  Ateliér zahradní a krajinářské architektury Sendler
Hospodaření s dešťovými vodami: JV PROJEKT VH
Požární řešení: Ampeng
Zdravotechnické instalace: Atavis
Elektrotechnické zařízení:  AZ elektroprojekce
Dopravní řešení: ADVISIA
Informační a orientační systém: Lukáš Kijonka, Alexey Klyuykov
Fotografie: BoysPlayNice

Mapa